Rada Nadzorcza Euro-Park Ząbkowice Sp. z o.o. z siedzibą w Ząbkowicach Śląskich przy ul. Powstańców Warszawy nr 8W, 57-200 Ząbkowice Śląskie, zaprasza firmy audytorskie do składania ofert na przeprowadzenie badania sprawozdania finansowego Euro-Park Ząbkowice Sp. z o.o. z siedzibą w Ząbkowicach Śląskich przy ul. Powstańców Warszawy nr 8W, 57-200 Ząbkowice Śląskie, KRS: 0000962591, NIP: 8871822548 (dalej jako: „Spółka”) za lata 2023 i 2024.
4. Otwarcie ofert nastąpi w siedzibie Spółki na najbliższym posiedzeniu Rady Nadzorczej, które odbędzie się po upływie terminu składania ofert podanej w punkcie 2 niniejszego ogłoszenia.
5. Oferty złożone po upływie terminu określonego do ich przyjmowania oraz niespełniające wymogów zawartych w ogłoszeniu, nie podlegają rozpatrzeniu.
6. Wymagany termin realizacji badania sprawozdania finansowego Spółki wraz z przekazaniem sprawozdania z badania:
a) za rok obrotowy 2023 to dzień 31 marca 2024 r.;
b) za rok obrotowy 2024 to dzień 31 marca 2025 r.
7. Zapłata ceny za badanie sprawozdań finansowych oraz sporządzenie pisemnych sprawozdań z tych badań za lata 2023 i 2024 nastąpi w częściach wskazanych w ofercie, właściwych dla danego badanego okresu, po sporządzeniu i przekazaniu poszczególnych pisemnych sprawozdań z badań.
8. Rada Nadzorcza zastrzega sobie prawo swobodnego wyboru oferty, negocjacji warunków umowy oraz odstąpienia od wyboru bez podania przyczyny i ponoszenia jakichkolwiek skutków prawnych i finansowych.
Przekazane oferty i załączniki do nich nie będą zwracane oferentom.
Czytaj więcej
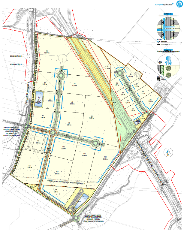
Miło nam poinformować, że zakończone zostało zadanie dotyczące opracowania programu funkcjonalno-użytkowego oraz szczegółowej wielobranżowej koncepcji projektowej budowy parku przemysłowego i hali produkcyjno-magazynowej w Ząbkowicach Śląskich.
Autorem dokumentacji projektowej jest biuro projektowe Grupa RB.
Powstanie dokumentacji to ważny kamień milowy w działaniach EURO-PARK Ząbkowice, mających na celu:
stworzenie atrakcyjnego funkcjonalnie i wizualnie parku przemysłowego, konkurencyjnego w zakresie możliwości zagospodarowania, nowoczesnej infrastruktury, z dostępem do wszystkich niezbędnych mediów – w tym OZE – zgodnie z oczekiwaniami inwestorów;
zbudowanie przewagi konkurencyjnej regionu poprzez utworzenie wielu miejsc pracy z nowoczesnym zapleczem dla pracowników;
stworzenie miejsca przyjaznego inwestorom i pracownikom.
Poniżej pierwsze wizualizacje naszego terenu i hali produkcyjno-usługowej.



Na początku czerwca ogłoszono postępowanie przetargowe dotyczące wyłonienia wykonawcy dla zadania „Strefa inwestycyjna Euro-Park Ząbkowice Śląskie – szansą dla rozwoju firm i przedsiębiorstw”.
Zadanie to obejmuje opracowanie na podstawie Programu Funkcjonalno – Użytkowego dokumentacji technicznej, a na jej podstawie wykonanie robót budowlanych obejmujących modernizację oczyszczalni ścieków przy ul Rzecznej, rozbudowę i przebudowę sieci kanalizacji sanitarnej, modernizację ujęć wody w Olbrachcicach Wielkich, budowę sieci wodociągowej przesyłowej od ujęć w Olbrachcicach Wielkich do strefy, budowę infrastruktury drogowej w obszarze Euro-Parku.
Zapraszamy do udziału!
Termin składania ofert: 11.07.2023
Szczegóły w linku:

Podczas śniadania biznesowego organizowanego w maju gościliśmy w siedzibie Euro-Park Ząbkowice znakomite grono przedstawicieli biznesu z Kotliny Kłodzkiej. Nasze spotkanie swoją obecnością zaszczycił także poseł Marcin Gwóźdź, który niezmiennie wspiera projekt naszego euro-parku.
Tematyka spotkania dotyczyła rozwoju euro-parku oraz atrakcyjnych form wsparcia inwestorów. Prezes Euro-Park Ząbkowice Sławomir Jonko przedstawił plany rozwoju naszych terenów inwestycyjnych, dyrektor wrocławskiego Centrum Obsługi Przedsiębiorcy Agencja Rozwoju Przemysłu S.A. Monika Konofał mówiła o możliwościach finansowania działalności gospodarczej, a przedstawiciel Wałbrzyska Specjalna Strefa Ekonomiczna „INVEST-PARK” Michał Kozioł opowiedział o działaniach WSSE i Polskiej Strefie Inwestycji.
Nasze pierwsze śniadanie biznesowe przebiegło w miłej atmosferze, sprzyjającej nawiązywaniu kontaktów biznesowych. Zamierzamy kontynuować organizację takich spotkań – wkrótce będziemy informować o naszych kolejnych działaniach.
#śniadaniebiznesowe #arp #wsse




Serdecznie zapraszamy Przedsiębiorców z Kotliny Kłodzkiej na Śniadanie Biznesowe organizowane przez EURO-PARK Ząbkowice.
W spotkaniu weźmie udział Monika Konofał z Centrum Obsługi Przedsiębiorców ARP s.a. oraz Michał Kozioł z WSSE Invest-Park, który przedstawią zalety inwestowania w specjalnej strefie ekonomicznej.
Zainteresowanych prosimy o kontakt telefoniczny lub mailowy.

Dn. 7 grudnia 2022 dokonaliśmy uroczystego otwarcia biura Euro-Parku Ząbkowice. Symbolicznego przecięcia wstęgi dokonali prezes Euro-Parku Sławomir Jonko, prezes Agencji Rozwoju Przemysłu Cezariusz Lesisz, minister Michał Dworczyk, poseł na Sejm Marcin Gwóźdź oraz burmistrz Ząbkowic Śląskich Marcin Orzeszek. Gośćmi wydarzenia byli przedstawiciele lokalnych władz, biznesu, dostawców mediów i inne osoby, które szczególnie przyczyniły się do pomysłu utworzenia kolejnych terenów inwestycyjnych na terenie gminy Ząbkowice Śląskie. Otwarcie biura to kolejny ważny krok w rozwoju Euro-Parku.
Czytaj więcejSerdecznie witamy Państwa na nowej witrynie spółki EURO-PARK Ząbkowice powołanej celem utworzenia w Ząbkowicach Śląskich parku przemysłowego i stworzenia optymalnych warunków do lokowania na terenie powiatu ząbkowickiego nowoczesnych i innowacyjnych zakładów przemysłowych.
Czytaj więcej