EURO-PARK Ząbkowice
Tereny inwestycyjne w doskonałej lokalizacji
Dolny Śląsk jest jednym z czołowych ośrodków produkcyjnych w Polsce, w którym swoją pozycję ukształtowały wiodące branże: motoryzacyjna, AGD, maszynowa, farmaceutyczna i chemiczna. Obecność licznych firm zagranicznych w regionie, duża baza wykwalifikowanych pracowników oraz innowacyjność w rozwiązaniach przemysłowych i zastosowania przemysłu 4.0 stawiają Dolny Śląsk w czołówce regionów kraju.
Wraz ze wzrostem zainteresowania Dolnym Śląskiem, zwiększa się zapotrzebowanie na dobrze przygotowane tereny inwestycyjne. Wychodząc naprzeciw tym oczekiwaniom, w związku z planowaną budową drogi ekspresowej S8, Euro-Park Ząbkowice sp. z o.o. oferuje teren inwestycyjny parku przemysłowego w Ząbkowicach Śląskich. Lokalizacja parku przemysłowego bezpośrednio przy drodze ekspresowej S8 zapewni doskonałą komunikację ze stolicą regionu – Wrocławiem i EURO-PARK Kobierzyce.
Lokalizacja
EURO-PARK Ząbkowice położony jest na północ od Ząbkowic Śląskich, przy drodze krajowej nr 8 i jest obecnie przygotowywany pod funkcje przemysłowe. Park przemysłowy oddalony jest od Wrocławia o 60 km, a jego łączna powierzchnia to około 120 hektarów.
Polska
Dolnośląskie
EURO-PARK Ząbkowice
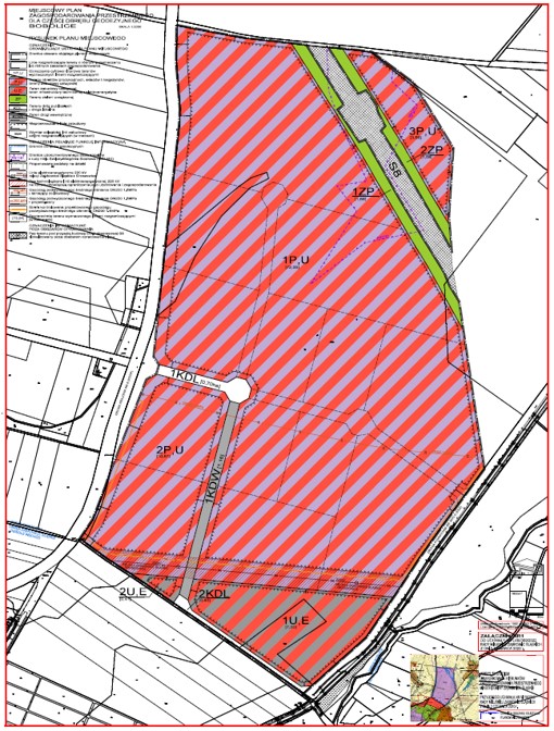
Miejscowy Plan Zagospodarowania Przestrzennego (MPZP)
Uchwalony w 2022 roku Miejscowy Plan Zagospodarowania Przestrzennego umożliwia prowadzenie działalności produkcyjnej na terenie Euro-Park Ząbkowice. Na terenie inwestycyjnym możliwe jest wybudowanie obiektów produkcyjnych, składów i magazynowych oraz zabudowy usługowej. MPZP zezwala na postawienie infrastruktury technicznej oraz urządzeń fotowoltaicznych.
Infrastruktura techniczna
- Wizualizacja terenu inwestycyjnego
- Drogi
- Energia elektryczna
- Instalacja gazowa
- Kanalizacja sanitarna i wodociągowa
Drogi
Droga ekspresowa S8, która połączy teren z autostradą A4, przebiegać będzie bezpośrednio przy działce inwestycyjnej. Zakończenie budowy Drogi S8 zaplanowano na 2026 rok. Dodatkowo planowana jest rozbudowa drogi DK8 o drugi pas ruchu i rozwój elektryfikacji linii kolejowej, biegnącej na odcinku Legnica – Katowice, co znacząco zwiększy atrakcyjność tego terenu pod inwestycje.
Energia elektryczna
W bezpośrednim sąsiedztwie działki znajduje się linia wysokiego napięcia 220 kV - w przyszłości przebiegać będzie tu linia 440 kV. Linie Świebodzice-Ząbkowice Śląskie oraz Ząbkowice Śląskie-Groszowice łączą działkę z elektrownią. Główne zasilanie działki stanowi GPZ 220/110/120 kV Ząbkowice, który położony jest ok. 3,5 km od terenu inwestycyjnego.
Instalacja gazowa
Stacja redukcyjno-pomiarowa znajduje się bezpośrednio po przeciwnej stronie drogi krajowej DK8 (stacja ZZU Zwrócona). Stacja należy do Polskiej Spółki Gazownictwa (PSG) – operatora dystrybucji gazu. Gazociąg w/c o ciśnieniu 6,3 MPa jest eksploatowany przez Gaz-System – operatora przesyły gazu. Gazociąg wysokiego ciśnienia połączony jest z gazociągiem dystrybucyjnym średniego ciśnienia 1,6 MPa. W celu zapewnienia dostaw gazu dla inwestycji planowana jest rozbudowa lub budowa stacji redukcyjno-pomiarowej gazu.
Kanalizacja sanitarna i wodociągowa
EURO-PARK Ząbkowice w chwili obecnej może być podłączony do sieci wodociągowej, kanalizacji sanitarnej oraz do sieci odprowadzającej ścieki socjalno-bytowe wzdłuż jego południowo-wschodniej części - droga powiatowa Ząbkowice Śląskie - Bobolice. Spółką wodociągową działającą w Ząbkowicach Śląskich jest PWiK Delfin Sp. z o.o. Spółka wodociągowa planuje modernizację istniejącej oczyszczalni ścieków wraz z jej rozbudową w celu przyjęcia większego strumienia ścieków. Obecna przepustowość oczyszczalni wynosi ok. 2500 m3/dobę i znajduje się ok. 5 km od działki. W zakresie zaopatrzenia w wodę, rozpatruje się dwa ujęcia wody: w Kamieńcu Ząbkowickim oraz w Olbrachcicach Wielkich.





